Interior
Exterior
Kitchen
Bathroom
Construction
Other
Get started with Trove
Bolster your sales & product team with Trove
Dealer License #:
4 Bed | 2 Bath | 2,125 Sq. Ft. | 31' 3" x 68'
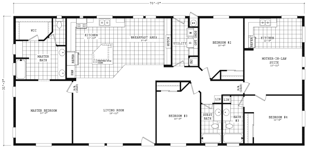
4 Bed | 3 Bath | 2,187 Sq. Ft. | 31' 3" x 70'
4 Bed | 2 Bath | 1,866 Sq. Ft. | 26' 8" x 70'