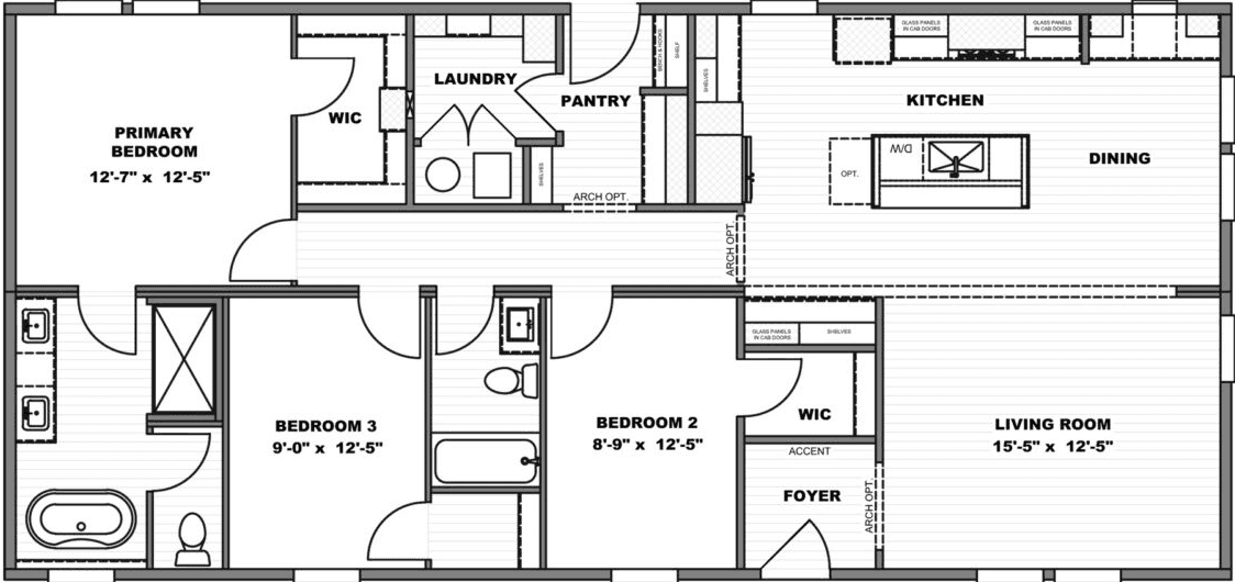
Homes | Camilla