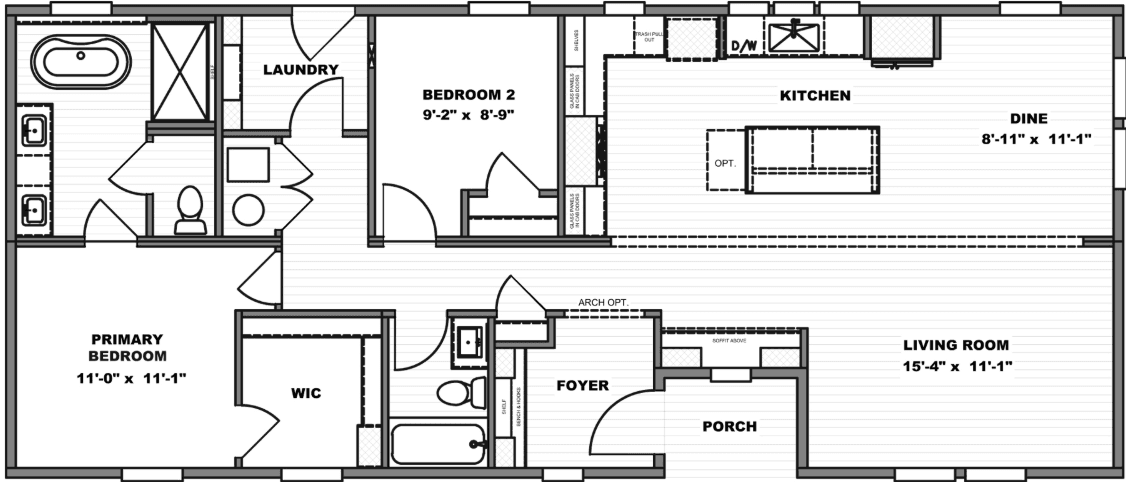
Homes | Cecilia