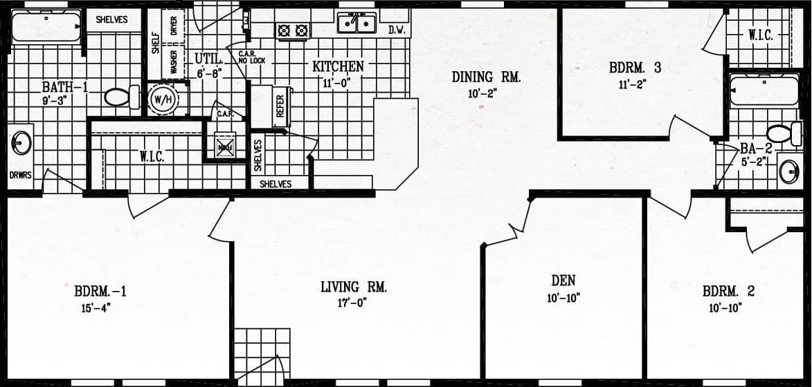
Homes | Columbia River Multi-Section 2020