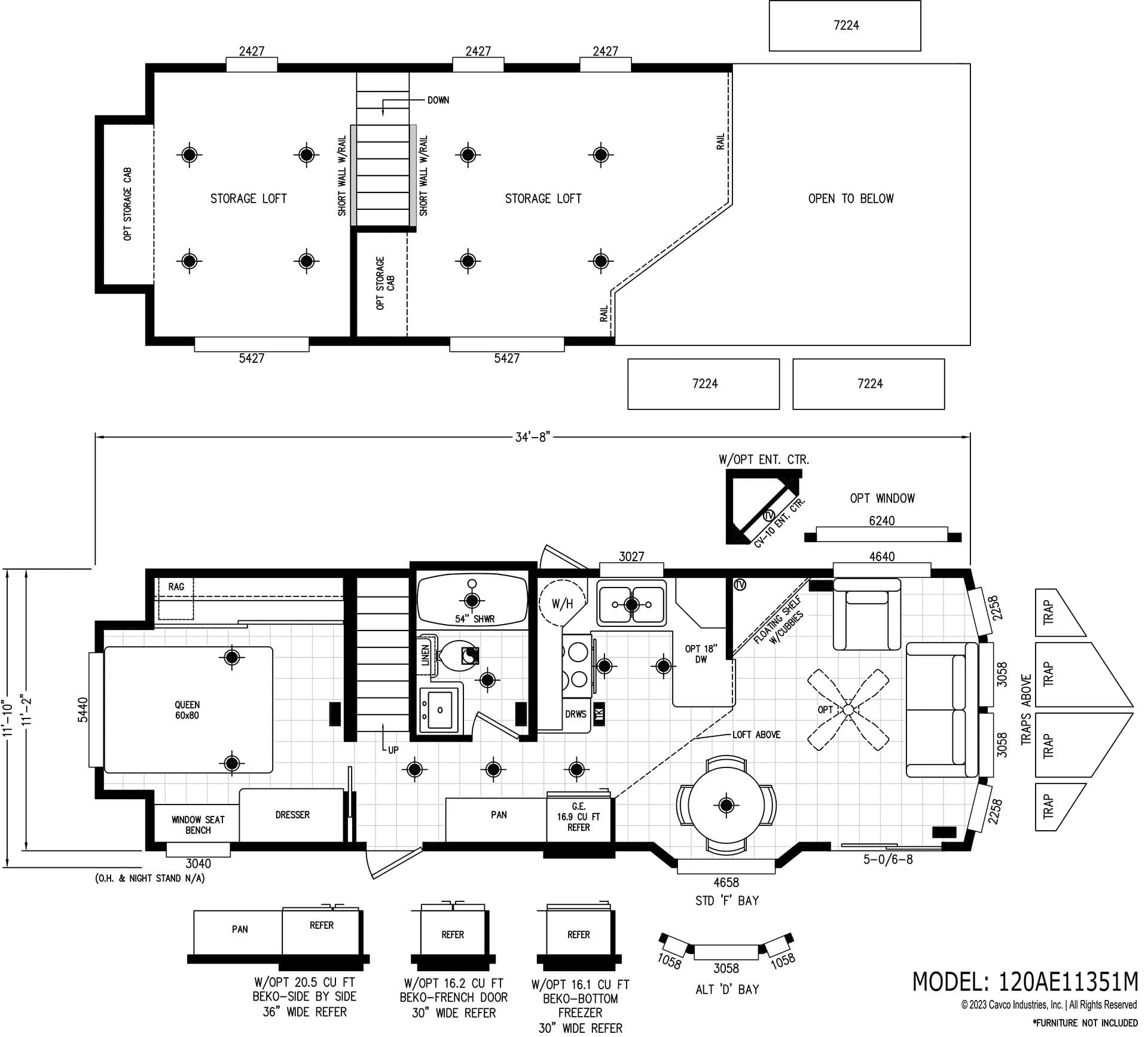
U-Shaped Kitchen, Patio Dining, Center Stairs, Double Loft
Interior
Kitchen
Bathroom
Bedroom
Exterior
Mechanical
Construction
Get started with Trove
Bolster your sales & product team with Trove
Dealer License #:
Images of homes are solely for illustrative purposes and should not be relied upon. Images may not accurately represent the actual condition of a home as constructed, and may contain options which are not standard on all homes.
1 Bed | 1 Bath | 386 Sq. Ft. | 11' 10" x 33'
2 Bed | 1 Bath | 440 Sq. Ft. | 13' 4" x 33'
1 Bed | 1 Bath | 467 Sq. Ft. | 11' 10" x 40'