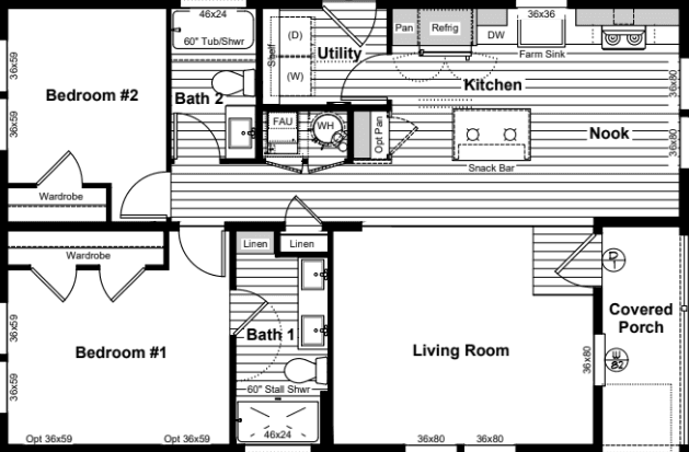
Homes | El Cajon (HCP-2840-2A)