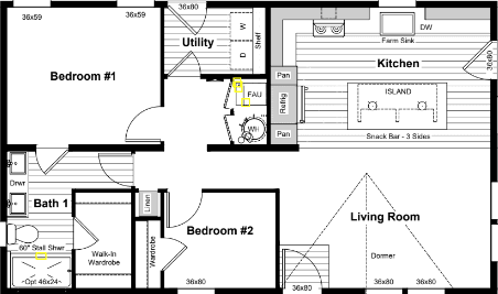
Homes | Light (HR-2440-2B)